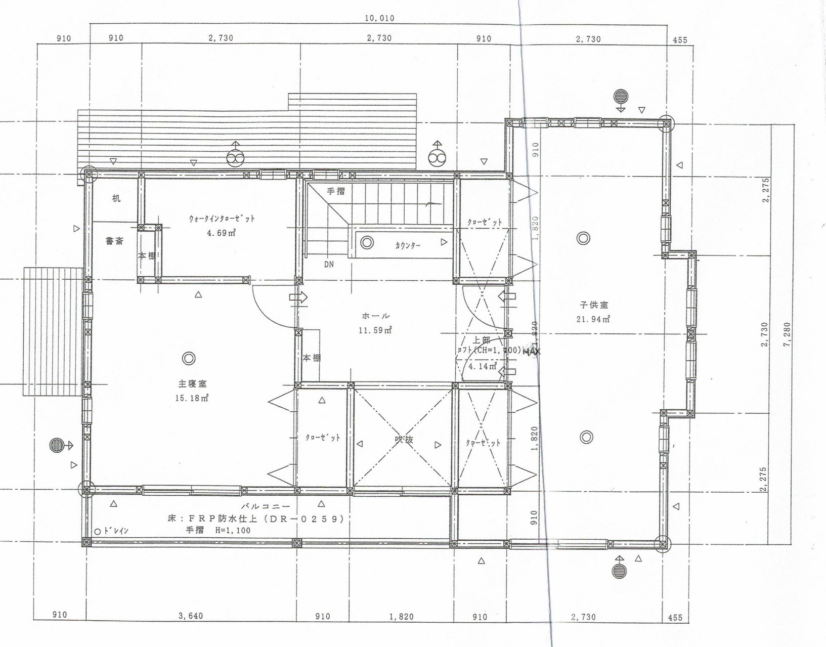
二階間取り